You are reading the older HTML site

Positive Feedback ISSUE 20
july/august
2005

 

rives1.jpg (6241 bytes)

rives2.jpg (10238 bytes)

 

The following series of articles by Rives Audio is being published in collaboration with PFO as a means to address the issue of the "room" and how best to maximize your musical pleasure.

Designing a Listening Room

The following document should provide a good understanding of what can be expected in terms of the process of designing a listening room.

There are five phases to most design projects. Some of the phases may overlap slightly on occasion, but ideally each will have a clear beginning and ending point. These design phases are:

  • Information gathering or application

  • Quote and/or contract

  • Dimension check or dimension analysis

  • Ergonomics

  • Concept plan

  • Schematics

  • Construction

  • Final measurements and testing

Each of these is discussed in more detail below.

Information Gathering

Any time a design is being contemplated, there is an initial process of gathering basic and useful information. This information includes things such as: Is the room dedicated or shared, Home Theater and/or 2 channel, what is the approximate size and how many people can it be expected to seat? 

At Rives Audio we have developed an application form that gathers this basic information. Using the standard form makes our work much more efficient, however this does not mean there MUST be a standardized form. What is important is that the design firm is listening to you�the client�and fully understanding your needs. If this is not happening at the very beginning, it is never going to work for you.  We've found our clients tend to vary quite a bit in terms of what they want to achieve, and as a result our designs necessarily vary as well. We ask all our clients to consider the following aspects of the design: budget, sonic benefit, and aesthetics. Each of these aspects work in a balance and each client has a different and unique threshold for each. There are also elements such as noise isolation, near-field vs. far-field, and other more subtle characteristics to be considered. Often we have to educate the clients a little so that they understand their priorities more fully. In other words, often it is not obvious to clients exactly what is important to them, and we need to go through a series of questions to help them understand their own listening preferences, and the most beneficial order for their priorities.

After we've received an application form, we will evaluate it and discuss with the client what possible approaches might be taken.. It is possible that there may not be a good practical or cost effective approach for a particular space, and undertaking a design might not be wise. While this is very rare, it can happen, but fortunately there will have been no charge for this phase of the project.  Some groups may charge a nominal fee for this aspect of the process, which is fine as well.

Quote and/or contract

At this point you and your designer should be able to decide if proceeding on the designs makes sense. If so, you should receive a quote and/or contract. Design firms have different ways of handling this. Whatever their policy is, read the contract carefully. Most are binding. Some may have penalties associated with various things from delayed payments to delays in schedules. Be sure you are comfortable with the contract and by all means ask questions for anything you do not understand. Also, if you are not familiar with the designers work, you may want to ask for references at this time.

Dimension Check or Dimension Analysis

If it is of existing construction, we take drawings from the client and put them into our CAD system. We send jpeg or other suitable drawings back to the client/dealer to verify that we have the correct dimensions put in our system. This drawing should be verified by the client/dealer/contractor to insure that dimensions are accurate.

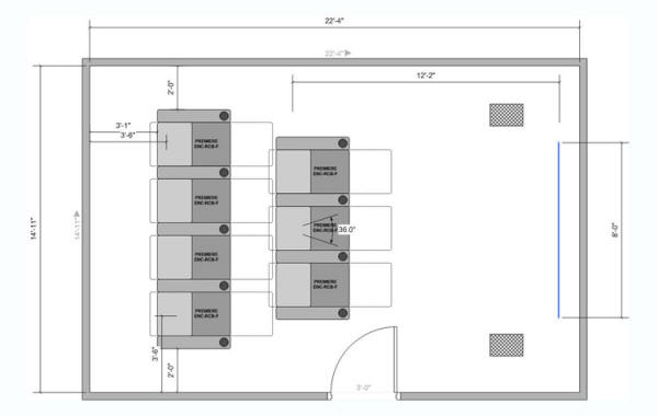
In the case of new construction, where we may have some flexibility in the dimensions, we do a dimensional analysis to determine what dimensions are best for the space our client has available. We also have to take into account the physical area of the space that is available and weigh it against the number of seats the client wants. Often, as might be expected, compromises have to be made. For example, a client may want more seats than a room really should have, which may compromise the sound quality for the rear row of seating. See "Room Size" diagram below. This shows the appropriate amount of space required. In a perfect situation, you would like to have the listeners at least 3.5 feet away from any adjacent wall. Not doing so will mean that they will experience low frequency gain above 40Hz from being too close to the wall, due to boundary wall loading effects. Also, the distance to the screen is important. For a projector that runs at 1080p, the nearest seat should have a viewing angle of no greater than 36 degrees. This will insure that they cannot resolve individual pixels. For an 8-foot wide screen, this works out to be a viewing distance of a little over 12 feet. Then, on top of all of these criteria, you should pick dimensions that have good modal distribution. We want to support as many room modes as possible in the low frequencies without having axial modes that are close to each other. When the latter happens we will get certain frequencies that are accentuated and create that "boomy" and muddy bass sound.

This whole process can be iterative as there may be some tweaking to insure it works into the rest of the architectural plan. We work with the client and architect until we are all in agreement as to the dimensions. This is an extremely critical phase of the project. Dimensions are one of the most important aspects of good low frequency sound reproduction, and they are not easily changed once built. So the moral is�get this right and listen to your designer/engineer. If they warn you of problems, listen carefully and ask them what problems and how severe. They should know where the problems will exist and have a rough estimate of the severity, but the severity is often difficult to predict precisely prior to building.

Keep in mind, you are paying someone to give you advice on this very important aspect, this is one area not to cut corners. It costs almost nothing to get the dimensions right in the beginning but can be much more costly to fix later.

Ergonomics

This phase is to insure that the ergonomics, or space use, of the room are correct. For new construction, we have to consider where the entryways and windows will be. For both new and existing rooms, this is the point where we determine the approximate speaker, screen, and seating locations, including how many seats, if there are risers, and any other basic ergonomic issues. Again, this is an iterative process to insure we meet all of the clients' needs. Once this is approved, we move on to the concept plan.

This sounds like a really simple phase of the project, but often it can get complex very fast. For example, someone can say he or she wants 12 people in a room that measures 14 x 19. Well, you can fit that many chairs in the room, but both the visual and sound will be severely compromised if you do this. Some of this process may have been taken care of in the dimension phase, but in this phase it should be refined. A good designer will lay out the room and show the requested number of seats, and then design another layout that would be optimized to show how many potential problems might be addressed and corrected. We run into this issue a lot, and show our clients what it does for the overall sound and visual issues (people too close to the screen who can see individual pixels�not a good idea). Once they can visualize the problems, they generally back off and say something like, "well, can we get 8 people in the room, even if 2 of them get bad sound?" Or sometimes we go from theater style seats, which take up a lot of room, to more casual couch style seating. There are many ways to incorporate compromise when striving to achieve the goals of the client, but again it's very important to really communicate with the designer/engineer. It's ultimately your room and they need to fully understand what is most important to you.

We have run into situations where some architects or designers feel it's "their" space. It's not. It's the home owner's space. He or she is hiring us, architects, interior designers, and others. We all work for the client, not the other way around. Any designer/engineer that forgets that should be off the project promptly.

Concept Plan

The concept plan adds the basic acoustical treatment into the room. This calls out all the surface treatments, floor type, ceiling construction, absorption, diffusion, and trapping within the room. It will also give a good idea of what the room will look like from a 2-D plan view. In addition, the concept plan is a good time to be considering budgets as well as aesthetics. Different treatments have different building costs associated with them, and while we can not know precisely what a contractor might charge, we do know how to trim costs. The caveat is that it is usually at the expense of either aesthetics or sonic benefits of the room. Once this phase is approved, we move to the schematic phase.

Keep in mind the three aspects I mentioned earlier in this phase: budget, sonic benefit, and aesthetics. You should have some sort of handle on these during this phase, though don't ask the designer/engineer specifically what it will cost. They are not builders and should not be expected to give you estimates. Your builder will have to do that. But the designer can design in certain ways that can be expected to reduce costs. 

I use an analogy with many of my clients of a kitchen. Imagine the A/V components are your appliances. You need cabinets and countertops and floors. You can have granite countertops, natural cherry cabinets, and beautiful stone tile flooring. It will be expensive, but look great. Or you can have formica cabinets and countertops, with a vinyl floor. It will function fine but won't look like the previous kitchen. You'll have a lot of extra money to spend on software (or fine wine) too. So you need to decide what's important to you. We often ask clients to look through magazines and tear out pictures of rooms they find appealing. Acoustics don't have to look like anything in particular. A creative designer can integrate them into almost any decor. We often use coffered ceilings, columns, and bookcases, as a way of integrating the acoustical needs of a room.

Some designers even provide 3-D pictures of what the room will look like. This is a nice added touch if aesthetics are very important to you and you have trouble visualizing what things might look like. However, these 3-D renderings are generally not cheap. Also, if they are going to this extent, the design is likely complex and thus relatively expensive to build.

Like the previous two phases, don't be afraid to ask questions and even offer suggestions of what you might like to see. This is really the last phase that the client will have input on, so it's important that you are really happy with the results at this point.

Schematics

The schematics have floor plans, together with all the details and assembly drawings, and often elevations where applicable. These are the details required to build the room. Also during the schematic process we verify the preliminary work done in the concept phase, and insure that we have the right amount of absorption, diffusion, and trapping, so there are likely some small modifications made from the concept plan, but they are relatively insignificant to the client.

The schematics complete the design phase. These can be given to a contractor(s) to bid on the project. Most contractors have never seen an acoustically engineered room before. That's okay�don't panic (yet). If your contractor doesn't ask, and doesn't call the engineer and designer to inquire, about some aspects of the design, you're in trouble. Don't hire that contractor, pick a different one. Then call the designer and get his opinion on the questions that were asked. Were they good questions? Did the contractor seem to have the right idea and perspective on the project? Your designer can be very important here because he will likely be communicating with your builder during the construction phase. Listen to him, and don't necessarily pick the lowest bid.

Construction phase

Well, it's all coming together here.  Think you're through once this has begun? Not even close. This phase is extremely important, because the finest designs with poor execution will lead to poor results. Excellent communication between builder and designer are a must because these types of designs are probably foreign to most builders. Often a builder comes to us with questions that, had they gone off and done what they proposed, would have completely ruined the design. For example, in a room that was completely isolated, the builder said, "the clients want recessed can lighting, is that okay?" We had specified track lighting and did it for the simple reason that cans would put a big hole in our sound isolation barrier. We of course told the contractor, "No, you cannot use recessed cans", and explained why. He was grateful for our explanation and that he had had the foresight to call.  In other cases, we've had the opposite experience occur where a contractor thought of a different way to build an acoustic device, or suggested a different building material that was acceptable and less expensive, or easier to construct. In those cases, we've often incorporated their ideas into our future designs. So designers can often learn from builders�if they are willing to listen. It's a two way street here and the most important thing is communication.

The overall process

In working with Rives Audio, one very important aspect to understand about this process is that once a particular phase is completed and approved by the client, and we move to the next phase, we can not go backwards to a prior phase and change things without additional charges. This is one of the ways we keep our costs down and are able to provide our services and very reasonable fees. Whether you are working with our company or another design/engineering firm, keep this in mind. They need firm decisions from you that they can count on as they work through the design process. A client who keeps changing his or her mind can be extremely frustrating and inefficient for the designer. A situation such as this can lead to less than optimum results.

As you go through the process, don't be afraid to ask questions, of your acoustical engineer, architect, and builder. Don't expect them to educate you on every aspect of what they do, but they should provide you with ample information so that you can make informed decisions along the way. Also, try to enjoy the process. Don't get caught up on fabric colors when you are still trying to figure out the dimensions of the room. Take it a step at a time and a good engineer will walk you right through the process.

Please visit www.rivesaudio.com, who has provided this series of articles on acoustics. Rives Audio is the leading consulting and design group for small room acoustics and has an extensive resource section where you can learn more on acoustics as well.

 

POSITIVE FEEDBACK ONLINE � 2005 - HOME

BACK TO TOP